
ABOVE: The 1910 Manse (parsonage) of the Wintersburg Japanese Mission, in 2014 just prior to the purchase of Rainbow Environmental by Republic Services. The Mission effort was founded in 1904 in Orange County. The first couple to live in the Manse was Reverend Joseph K. Inazawa and his wife, Kate Alice Inazawa, née Goodman. Their marriage was illegal due to California's anti-miscegenation laws. They eloped to New Mexico to marry, then returned to California to take up residence as the clergy for the newly opened Wintersburg Japanese Mission. (Photo, M. Urashima, October 2, 2014) © ALL RIGHTS RESERVED
*Updated March 10, 2022
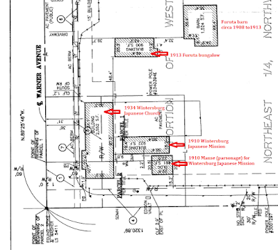
[Huntington Beach,
California]—Shortly before 9 am, Friday, February 25, there was notification of
a fire at endangered National Treasure Historic Wintersburg, located at Warner
Avenue and Nichols Lane in Huntington Beach, California. Community
preservationists have worked since 2012 to save and preserve this property,
which holds over a century of nationally significant Japanese American history.
A fire of unknown origin destroyed the
112-year-old manse (parsonage) of the 1910 Wintersburg Japanese Mission. The
nearby 1910 Wintersburg Japanese Mission was lost to demolition a few hours after the fire. Both historic
structures were demolished within a few hours of the fire before the investigation was completed and the investigation is ongoing per the City of
Huntington Beach.
LEFT: The 1910 Manse is located at the far left of this image, with the 1910 Wintersburg Japanese Mission near it at left. The Barn, circa 1908-1913, is at right. The field of nopale (prickly pear cactus) is not original to the property and planted by employees of Rainbow Environmental Services, formerly Rainbow Disposal. (Photo, M. Urashima, February 13, 2017) © ALL RIGHTS RESERVED
The Historic Wintersburg property
was named one of America’s Most Endangered Historic Places in 2014 and
designated a National Treasure in 2015 by the National Trust for Historic
Preservation. Preserve Orange County named Historic Wintersburg one of Orange
County’s Most Endangered Historic Places in 2017. In recent years beginning in
early 2016, Historic Wintersburg was targeted with anti-Asian hate, social media harassment and threats, prompting police reports filed with the City of Huntington Beach Police Department.
We do not want to share publicly all the language and graphics used--particularly those with images of private individuals--in order to not amplify the hate they represent and respect the privacy of those targeted. We share some examples here to help readers understand the types of things being posted online. It appears the online publications and social media were locally generated and circulated in Huntington Beach.
RIGHT: Online and social media included a blog, "The Sledgehammer," with a masthead graphic including the old Rising Sun flag of Japan, a World War II era Japanese zero airplane, and a person taking a sledgehammer to it. The Anti-Defamation League explains the hammer symbol has been appropriated by neo-Nazis and other white supremacists. The Hammerskins or Hammerskin Nation were one of the most prominent American white power skinhead groups and utilized the hammer symbol. (Graphic, The Sledgehammer, August 2017)
LEFT: Posts and graphics from The Sledgehammer were regularly shared on social media, primarily in Huntington Beach. The use of Japanese imagery and rhetoric repeats the rhetoric and graphics used during World War II which conflated Americans of Japanese ancestry with the actions by Japan, aka the "fifth column." The intention of propaganda then, as it is with social media today, is to separate and demonize a specific group. (The Sledgehammer, January 27, 2018)

RIGHT: Almost daily blog and social media posts indicated monitoring of Historic Wintersburg. When the China Alley Historic District in Hanford, California, (also named one of America's 11 Most Endangered Historic Places in 2011) published information about Historic Wintersburg to support the preservation of Asian American heritage sites on February 7, 2018, a blog post by The Sledgehammer the next day included a stereotypical image and dismissed the historic recognition by the National Trust for Historic Preservation. The Taoist Temple in the China Alley Historic District was heavily damaged by fire in May 2021, Asian American Heritage Month. Hanford, California police were able to identify and arrest the arsonist by June 2021. (The Sledgehammer, February 8, 2018)
LEFT: The Sledgehammer blog also included "merchandise" with World War II era anti-Japanese references, photo shopping preservationists into graphics. The merchandise also included items referencing person conversations with a representative for Rainbow Environmental. Four days after this was posted on January 31, 2018, The Sledgehammer posted an image of the preservation project leader being tied to a railroad track to be hit or killed with a sledgehammer. The post contained a caption referencing fire, "we'll burn it f-ing down.....to a cinder." (The Sledgehammer, January 27, 2018) All six historic structures at
Historic Wintersburg are listed in the City of Huntington Beach General Plan
historic and cultural element as eligible for the National Register of Historic
Places, which automatically places Historic Wintersburg on the State of
California list of historic and cultural resources. This then triggers a California Environmental Quality Act (CEQA) review of any action on the property and its structures.
BELOW: In 2018, The Sledgehammer established and linked to a Go Fund Me for a plaque at Historic Wintersburg (with the assumption it would be demolished) with a prototype that there were "unremarkable buildings" and "some Japanese people lived here." There were reports to Go Fund Me and the the fundraiser was taken down. Historic Wintersburg also has never used Go Fund Me. On February 28, 2022, after the fire, we again received reports that there was mention of a Go Fund Me for Historic Wintersburg and we posted a statement to our followers that it was not legitimate. Historic Wintersburg has never used Go Fund Me. (The Sledgehammer, January 28, 2018)

With local and national partners,
the Historic Wintersburg community preservation group has engaged since 2012
Rainbow Disposal and in 2014 new owner Republic Services in discussions to
purchase the property for historic preservation purposes. Republic Services has
publicly stated to the media they would work with the community effort on the
sale for historic preservation purposes but have disengaged the past two years.
Preservationists raised $30,000 in
funding to conduct an outside review in 2015 by a multi-party panel of historic
preservationists, city planners and economic/business professionals—including
participation by Rainbow Environmental Services-Republic Services—to
demonstrate adaptive re-use options to save the property and prevent its demolition
and development.
Months after that analysis, Rainbow Environmental
Services=Republic Services reached legal settlement with the Ocean View School
District, in which the school district won a favorable decision. The settlement agreement legally encumbered the property in perpetuity, changing the
circumstances and restricting development.
LEFT: The 1910 Manse (parsonage) as it looked in 1991. At that time the property was occupied and maintained. The Manse still retained its glass windows and doors, and was secured. (Photo courtesy of Douglas McIntosh, November 1991) © ALL RIGHTS RESERVED
As a result of a 2016 legal
settlement agreement between the Ocean View School District—which has a
preschool and elementary school adjacent to Historic Wintersburg—and Rainbow
Environmental Services-Republic Services, there are land use encumbrances on
the Historic Wintersburg property that prevent its development and safeguard the
property for historic preservation. City of Huntington Beach planning
requirements also impose restrictions that hinder development. The Ocean View
School District owns land adjacent to the Historic Wintersburg property,
including the entirety of Belsito Street to the south and land and/or
right-of-way on adjoining and nearby streets. The school district has expressed
support for the full preservation of Historic Wintersburg.
The encumbrances imposed by the legal settlement agreement and the restrictions imposed by City planning requirements for ingress, egress and offsite improvements result in the property being undevelopable for commercial, industrial or residential use. Additionally, outside experts in appraisal of
and planning for complicated historic properties do not consider the Historic Wintersburg
property developable other than as a heritage park with museum type uses.
RIGHT: One of the instances of lack of adequate security reported to Rainbow Environmental
Services-Republic Services during an inspection of the property with the National Trust for Historic Preservation, Trust for Public Land, and a representative for Rainbow Environmental
Services-Republic Services. Boarding had been removed from the 1934 Wintersburg Japanese Church building and there was evidence of clothing, food and miscellaneous debris, and a flammable Sterno can (center of image). In another onsite visit in 2012, Rainbow Environmental Services was alerted to a can of kerosene in the front room of the 1912 Furuta bungalow. (Photo, M. Urashima, March 7, 2017) © ALL RIGHTS RESERVED
Over the past decade, the community
preservationists have contacted Rainbow Environmental Services-Republic
Services repeatedly to provide more security and regular maintenance of the
property, which has experienced vandalism, tagging, trespassing to steal items,
and trespassing to enter the buildings for shelter. During inspections of the
property, items such as a can of kerosene and Sterno cans have been found inside
buildings and brought to the attention of Rainbow Environmental
Services-Republic Services for removal.
LEFT: The Historic Wintersburg preservation volunteers arranged for thousands of dollars worth of tree trimming and brush clearance by Tsuzuki Enterprises--a licensed and professional landscaper with commercial equipment and crew--at no cost to Rainbow
Environmental Services-Republic Services. The work was covered under proof of million-dollar liability coverage. Its purpose was reduce risk to the structures and property, and to prevent fire risk. This later was offered again, along with trash cleanup and tagging removal, with no response from Rainbow
Environmental Services-Republic Services. (Photo, M. Urashima June 8, 2016) © ALL RIGHTS RESERVED
The community previously provided thousands of
dollars’ worth of tree trimming and brush removal—at no cost to Rainbow
Environmental Services-Republic Services—to remove vegetation that put not just
the six historic structures at risk, but also the adjacent homes, and the Oak
View preschool and elementary school.
RIGHT: The 1910 Wintersburg Japanese Mission as it appeared in 1991. The hedge row was maintained, there was glass in the windows and the property and its structures were being maintained. (Photo courtesy of Douglas McIntoch, November 1991) © ALL RIGHTS RESERVED
As recently as two weeks before the
fire on February 25, Rainbow
Environmental Services-Republic Services and City of Huntington Beach leaders
were contacted in writing with photo documentation about vandalism and lack of
security and maintenance at Historic Wintersburg. They did not respond.
LEFT: The demolished remains of the 1910 Wintersburg Japanese Mission and 1910 Manse two days after the fire. (Photo, M. Urashima, February 27, 2022) © ALL RIGHTS RESERVED
The Historic Wintersburg
Preservation group, and partners Preserve Orange County and Heritage Museum of
Orange County, call upon Republic Services and community leaders in Huntington
Beach and Orange County to take action to save and preserve this rare and
significant National Treasure historic place. Historic Wintersburg is endangered and two of the six structures designated as eligible for the National Register of Historic Places are gone forever. We are calling for a thorough
arson investigation.
Individuals and organizations with
the Japanese American community are calling for:
1) an arson investigation,
2)
the right of Japanese Americans to collect ash and remains or artifacts from
the two buildings to honor the heritage and history of a sacred site, and
3)
action by the City of Huntington Beach to bring Rainbow Environmental
Services-Republic Services back to the table in genuine negotiations to allow
the purchase of the property by preservationists and museum professionals
partnered with Historic Wintersburg for the purpose of historic preservation as
a heritage park.
A partial list of those sending letters to the City of Huntington Beach calling for the actions above include:
- Japanese American National Museum (Los Angeles)
- Japanese American Citizens League (Washington,
DC)
- Japanese American Confinement Sites Consortium
(national)
-
Japanese American Memorial Pilgrimages
(national)
- 50 Objects/50 Stories of the American Japanese
Incarceration (national)
- Poston Community Alliance (Poston, Arizona,
confinement site)
- Little Tokyo Historical Society (Los Angeles)
- Heart Mountain Foundation (Wyoming confinement
site)
- Friends of Minidoka (Idaho confinement site)
- Minidoka Pilgrimage (Idaho confinement site)
- Historical Museum at
Fort Missoula (Montana)
- South East Los Angeles
North Orange County (SELANOCO) chapter of the Japanese American Citizens League
(California)
- Tuna Canyon Detention Station Coalition
- Asian and Pacific Islander Americans in Historic Preservation (APIAHIP)
We will continue to update as things progress.
© All rights reserved.
No part of the Historic Wintersburg blog may be reproduced or duplicated
without prior written permission from the author and publisher, M. Adams
Urashima.